Description
- Retirement development in central village location
- Landscaped communal gardens
- 24 hour call centre support system
- Owners' Lounge with coffee bar
- Guest Suite for friends and family
- Energy efficient and economical heating
- Friendly Lodge Manager on hand Monday to Friday
- Secure camera entry system
- Patio or Balcony with some apartments
- Lift access to all floors
** Book your visit to the show apartment today **
'Manns Lodge’ is positioned right in the heart of the village, perfectly located for the local shops, cafes and other amenities.
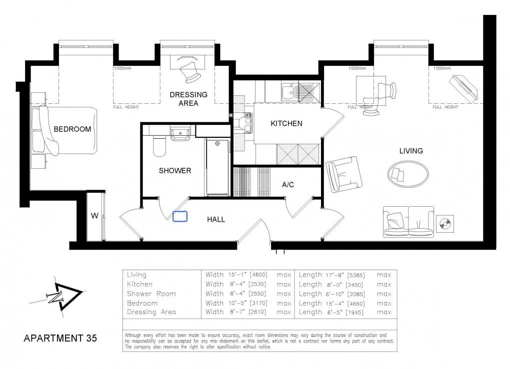
This one double bedroom top floor apartment is situated on the front of the building which is a Westerly orientation, the spacious apartment includes a dressing area and a large shower room. All Churchill Living apartments are self-contained with their own front door providing privacy when you want it, but with a communal Owners' Lounge where you can meet up with like-minded neighbours or join in with one of the regular social events.
Other one bedroom apartments and two bedroom apartments are available, some feature a balcony or terrace, contact our sales team to discuss.
All apartments are fitted with a 24-hour call centre support system, video door entry system and an intruder alarm as standard providing you and your family with peace of mind. A Lodge Manager is responsible for the effective and smooth running of the development.
Each development has a free car park and beautifully landscaped gardens which are maintained on your behalf. Some apartments at Manns Lodge also feature balconies or patio areas providing the perfect outside living space.
Kitchens are tiled with colour-coordinated worktops and come fully fitted with a waist-height oven, hob and upright fridge/freezer as standard. Shower rooms feature low-level shower trays and easy turn taps. Two bedroom apartments feature a separate WC or an en-suite.
For those who like to travel, reciprocal Mini Breaks are available in other Churchill Living Lodges in a wide range of locations.
Churchill can offer re-sale and/or letting support and the apartments can be retained for longer term rentals – age dependent.
Important notes: Buyers need to be 60+ but may have partner 55+. The images used within this advert are either CGI or photos of another Churchill development and for indicative marketing purposes only. The pricing is indicative during this pre-sale stage and is subject to change.
Floorplan


