Description
- Fully customise one of only three brand-new detached barn style homes
- Constructed by multi award winning Concept Two Homes
- Stamp Duty Saving
- Interchangeable floor layouts
- Choice of all interior finishes
- Fully managed with fixed price build contract
- 12 month construction programme
- 10 Year Warranty
- Full planning permission/Design Code
Introducing Solis Barn at Wildwood Meadows
You’ve been searching for the perfect home, only to find that nothing quite matches your vision. If the idea of building your dream home sounds exciting, but also overwhelming, there’s another path. One that offers the freedom to create a space that’s uniquely yours, without the hassle and stress of a traditional self-build.
Wildwood Meadows offers a truly unique design and build opportunity to fully customise one of only three brand new, bespoke barn-style homes, constructed by Concept Two Homes and nestled in the tranquil countryside of Alfold on the Surrey/Sussex border.
Create a home that truly reflects your vision, with ease, clarity and complete peace of mind. Concept Two Homes handle every step of the build with expert craftsmanship, ensuring a smooth, hassle-free process from start to finish.
Everything taken care of, step by step
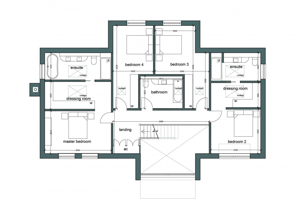
Choose a Floor Plan
Select from customisable internal floor layouts to perfectly suit your lifestyle, ensuring every detail of your home meets your unique needs.
Personalise Your Interiors
A home should feel like it was made for you, and with Concept Two Homes, it truly is. You can choose from a wide range of premium interior finishes and fixtures, all from trusted brands like Villeroy & Boch, Crosswater, Porcelanosa, Minoli, Miele, Siemens, and more, ensuring the highest quality results without the overwhelm of unlimited choices and endless decisions. This is the opportunity to create a home that’s distinctly yours, designed with care, crafted for durability, and made easy from start to finish.
Stress-Free Construction
With Concept Two Homes, your peace of mind is assured. Their award-winning team manages every aspect of the build, seamlessly, from start to completion. A dedicated full-time Site Manager oversees the process on site, ensuring a smooth, timely build with exceptional attention to quality throughout. Forget worries about unexpected delays or compromises on quality, your home will be crafted to the highest standards at every stage.
Fully Managed & Fixed Price
Enjoy the peace of mind that comes with a fully managed, fixed-price build contract. Every stage is taken care of, allowing you to focus on what matters most, the creative elements of designing your dream home without any of the usual pressures or surprises.
About Concept Two Homes
Founded in 1971, Concept Two Homes is a reputable, multi award winning building company with decades of experience in constructing stunning, high-value properties in exclusive locations. Renowned for their attention to detail and commitment to quality, they are trusted by clients to deliver homes of exceptional standard.
Floorplan
